€ 260.000
Beschreibung
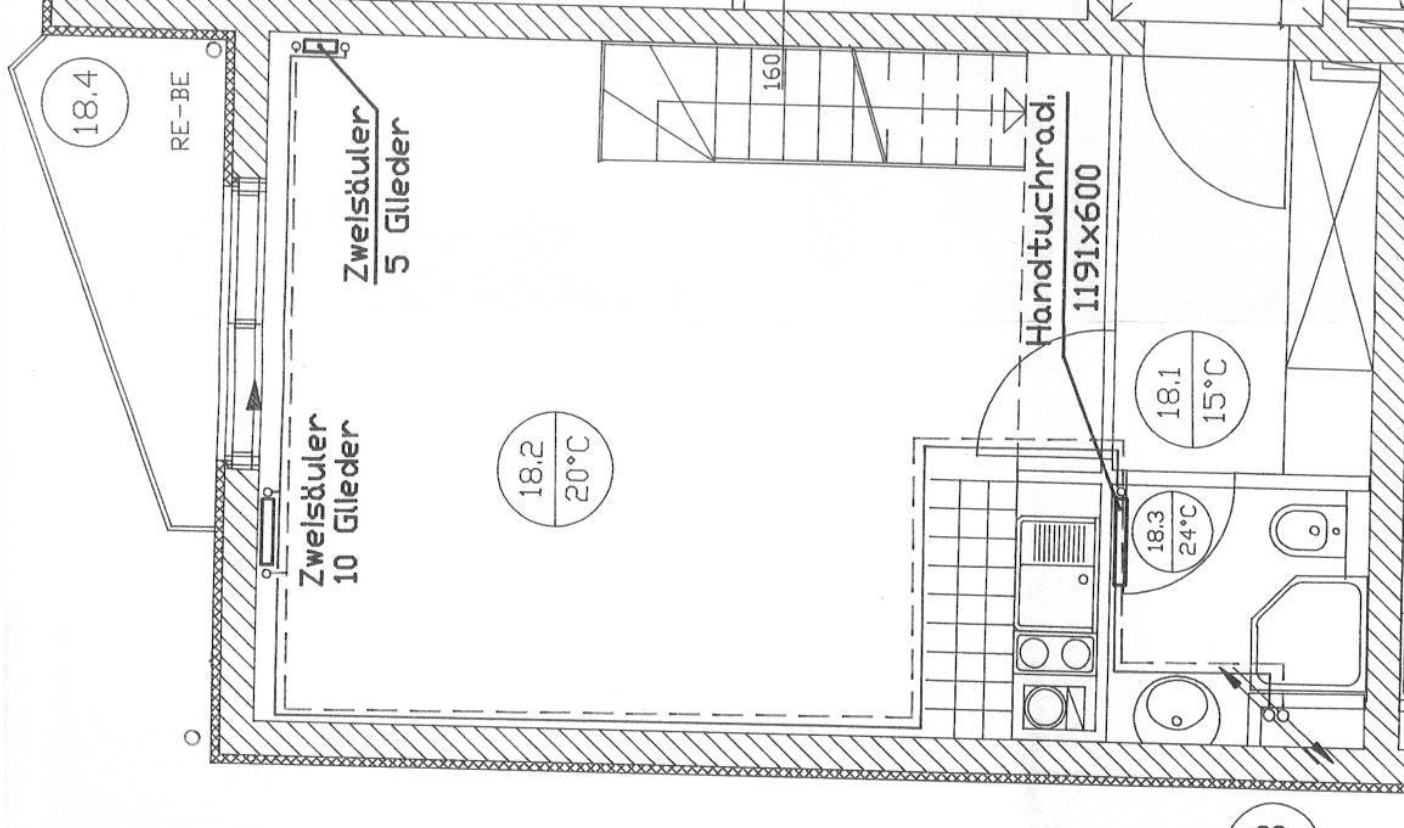
Die charmante Maisonette ist im Dachgeschoss gelegen im 4.OG. Mit dem Fahrstuhl erreicht man ganz bequem die 2 Zimmer Wohnung. Die Maisonette weist einen guten Schnitt auf und einen schönen Wohnbereich mit einer offenen Einbauküche.
Die bodentiefen Fenster punkten mit einer Lichtdurchflutung der gesamten Wohnfläche. Eine Treppe innerhalb des Wohnbereiches führt zur Galerieebene, auf der sich der Schlafbereich befindet.
Die räumliche Offenheit bietet einen großen Mehrwert durch das freie Wohngefühl und individuelles Flair. Die Wohnung vermittelt einem das Gefühl in dem eigenen Häuschen zu wohnen.
Ein PKW Stellplatz in der Tiefgarage ist ebenfalls vorhanden.
Die Hausanlage ist gepflegt, ein Hausmeister ist vor Ort.
+ großzügige 2 Zimmerwohnung im 4. OG ruhig gelegen im Dachgeschoss + offene Wohnküche mit Einbauküche
+ innen liegendes Duschbad
+ Laminat und Fliesen als Bodenbeläge
+ Isolierverglasung der Fenster + Balkon mit Fernblick
+ Keller
+Tiefgaragenstellplatz
Provisionshinweis: Die Provision beträgt 6,96% (inkl. MwSt.) vom Kaufpreis und ist vom Käufer bei wirksamem Abschluss des Kaufvertrags zu zahlen. Der Interessent verpflichtet sich, die vereinbarte Provision zu bezahlen, wenn mit ihm oder einem mit ihm verbundenen Haus ein notariell beurkundeter Vertrag zustande kommt.
Haftungsausschluss: Die Angaben zu folgende Vertragsgelegenheit haben wir vom Eigentümer erhalten, welche wir gerne an Sie weiterleiten. Eine Haftung für die Richtigkeit dieser Angaben können wir nicht übernehmen. Die Wohnungsgröße wurde von uns ausdrücklich nicht ausgemessen. Der Grundriss stammt vom Verkäufer. Wir sind auch für den Verkäufer tätig.
