– – ID 1759
€ 174.000
Lehderstr. 71
13086
Description
We offer you a Vacant 1-room apartment for sale in Berlin Weißensee. The apartment is located on the 2nd floor of a pretty house from the Gründerzeit.
The facade, the inner courtyard, the staircases and the strands were renewed by the seller in 2015. The roof was converted in apartments in 2016. The property is heated by central heating.
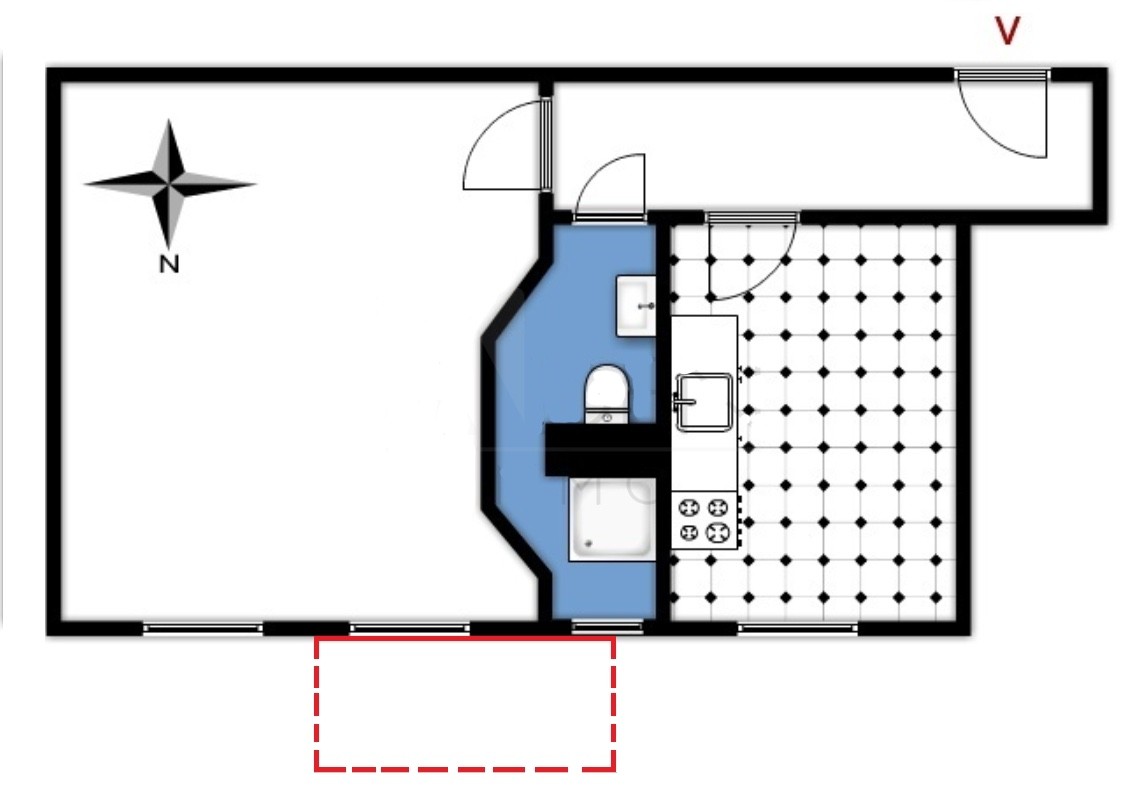
This great apartment has a classic cut and offers everything a single can desires on a good 40 m2: a spacious room, a shower with window and a large kitchen, with room for a table.
Old building charm is given by the room height and the original wooden windows and doors.
New double glazed wooden windows were installed in the kitchen and bathroom.
A balcony will be attached to the apartment. This is already included in the purchase price!
The apartment is located in Pankow, district Weißensee. Weißensee offers a special mixture for young and old. Families as well as young creative people from all over the world live here.
The area around Lehderstraße is quiet but above all central, a few minutes away from Prenzlauer Berg. In only 13 min. driving time you are with the tram M2 at probably the most central point of Berlin, the Alexanderplatz!
Commission note: The commission amounts to 7.14 % (incl. VAT) of the purchase price and is to be paid by the buyer upon effective conclusion of the purchase contract. The interested party undertakes to pay the agreed commission if a notarised contract is concluded with him or a person or company associated with him.
Disclaimer: All information originates from the seller and was given in this exposé carefully and as completely as possible. Nevertheless, the presence of errors cannot be excluded. The information in this exposé is therefore provided without any guarantee. The agreements concluded in the purchase contract are authoritative. The broker assumes no liability whatsoever.
The size of the flat was explicitly not measured by us. The floor plan was provided by the seller.
